Omschrijving
Heeft u een eigen werkruimte nodig, wilt u efficiënter werken? Kom eens langs, het is heel eenvoudig! Succesvol zijn in de zakenwereld betekent...
Kantoorpand 1-2 personen in Maastricht - Alles inbegrepen!
€ 500
Maastricht, Limburg, 6229 EN
Omschrijving
Heeft u een eigen werkruimte nodig, wilt u...
Business World Lounge in Maastricht
€ 282
Maastricht, Limburg, 6229 EN
Omschrijving
"Regus biedt u de mogelijkheid uw professionele netwerk...
Kantoorpand 5-6 personen in Maastricht - Alles inbegrepen!
€ 1132
Maastricht, Limburg, 6229 EN
Omschrijving
Succes staat voor de deur! Meer dan 1...
Omschrijving
Word productiever en bespaar op de kosten door...
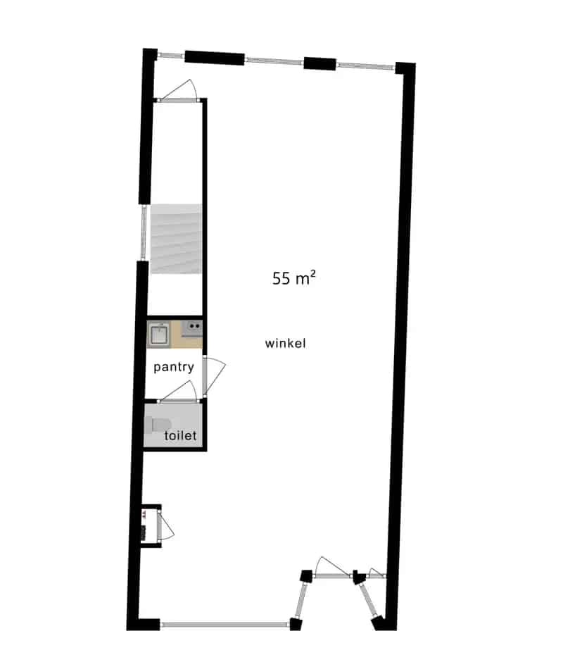
159 m2 winkelruimte te huur in Maastricht
€ 44000
10, Muntstraat, Maastricht, Limburg, 6211 EJ
159 m2
Locatie Het voor verhuur beschikbare winkelpand is gelegen in de Muntstraat dat onderdeel uitmaakt van het A1-kernwinkelgebied en de verbinding vormt tussen de Markt (Mosae...
Kantoorpand 5-6 personen in Maastricht - Alles inbegrepen!
Omschrijving
Succes staat voor de deur! Meer dan 1...
75 m2 winkelruimte te huur in Maastricht
€ 3500
14A, Platielstraat, Maastricht, Limburg, 6211 GV
75 m2
Op een toplocatie in een Rijksmonument, in het centrum van Maastricht in de Platielstraat is deze mooie winkelruimte te huur per 1 januari 2026.
Het...
53 m2 kantoorruimte te huur in Maastricht
€ 1100
4, Looiersgracht, Maastricht, Limburg, 6211 JK
53 m2
Op de Looiersgracht 4 gelegen kantoorruimte met afzonderlijk secretariaat. Deze prachtige monumentale locatie en ruimten zijn per direct te huur. De hoofdkamer is goed toegankelijk...
Karakteristieke kantoorruimte beschikbaar in monumentaal pand in Maastricht
Aan de prachtige Wilhelminasingel 118, op de hoek met het Hoogbrugplein, komt per 1 september 2025 de...
82 m2 bedrijfsruimte te huur in Maastricht
€ 900
4, Sint Annalaan, Maastricht, Limburg, 6217 KA
82 m2
Maatschappelijke ruimte beschikbaar aan de Sint Annalaan 4 in Maastricht, op korte afstand van het bruisende stadscentrum. De locatie biedt een uitstekende bereikbaarheid: het centrum...
122 m2 bedrijfsruimte te huur in Maastricht
€ 1100
Maastricht, Limburg, 6226 CH
122 m2
Multifunctioneel bedrijfspand met kantoorverdieping beschikbaar voor de verhuur. Het pand is gelegen aan de Europalaan 33-7 in Maastricht Airport, op slechts enkele autominuten van de...
80 m2 winkelruimte te huur in Maastricht
€ 2400
2, Graanmarkt, Maastricht, Limburg, 6211 HG
80 m2
TE HUUR: GRAANMARKT 2, MAASTRICHT - Winkelruimte in karakteristiek pand met opslagkelder.
Op een toplocatie in het historische centrum van Maastricht, nabij het Onze Lieve...
Kantoorpand, Centrale ligging, Maastricht (Maastricht, L)
Omschrijving
Het betreft een karakteristiek kantoorpand aan de Wilhelminasingel...
15 m2 bedrijfsruimte te huur in Maastricht
€ 189
Maastricht, Limburg, 6221 HH
15 m2
In de vestiging van een net gerenoveerde personal training studio in Maastricht is een volledig uitgeruste behandelruimte beschikbaar voor meerdere dagdelen per week. Deze net...
Winkel Maastricht | Zoek winkels te koop en te huur: Avenue Ceramique 120 6221 KV Maastricht
Te huur / te koop : ca. 450 m² BVO winkelruimte op begane grond.Adres : Avenue Ceramique 120,...
339 m2 winkelruimte te huur in Maastricht
6A-12, Spilstraat, Maastricht, Limburg, 6211 CP
339 m2
De voor verhuur beschikbare winkelruimte maakt onderdeel uit van het overdekte Winkelcentrum Entre Deux . Een van de beste winkelcentra in Nederland, in 2008 zelfs...
Winkel Maastricht | Zoek winkels te koop en te huur: Stokstraat 11 6211 GB Maastricht
€ 2950
11, Stokstraat, Maastricht, Limburg, 6211 GB
57 m²
Te huur : ca. 57 m² BVO winkelruimte / te koop : winkelruimte en woonruimte (gehele object).Adres :...
189 - 309 m2 kantoorruimte te huur in Maastricht
17B, Vrijthof, Maastricht, Limburg, 6211 LD
309 m2
ALGEMEEN Op het bekendste plein van Nederland, het statige Vrijthof, ligt dit rijks monumentale gebouw dat compleet gerenoveerd is en op korte termijn verbouwd zal...
361 m2 winkelruimte te huur in Maastricht
Maastricht, Limburg, 6228 DR
361 m2
ROSERIJE 103-109, MAASTRICHT
ALGEMEEN Winkelcentrum Roserije is een deels overdekt buurtwinkelcentrum in de Maastrichtse wijk De Heeg. Het winkelcentrum Roserije is voor de wijken De...
90 m2 winkelruimte te huur in Maastricht
25, Stokstraat, Maastricht, Limburg, 6211 GB
90 m2
Algemeen: Aangeboden wordt een winkelruimte van ca. 90 m2 BVO plus achterterras van ca. 40 m2 met een interne verbinding naar het souterrain (magazijn, toilet...
728 m2 winkelruimte te huur in Maastricht
325, Roserije, Maastricht, Limburg, 6228 DR
728 m2
ROSERIJE 325, MAASTRICHT
ALGEMEEN Winkelcentrum Roserije is een deels overdekt buurtwinkelcentrum in de Maastrichtse wijk De Heeg. Het winkelcentrum Roserije is voor de wijken De...
128 m2 winkelruimte te huur in Maastricht
Maastricht, Limburg, 6211 CR
128 m2
Algemeen: Te huur ca. 128 VVO winkelruimte op de begane grond alsmede opslagruimte in het souterrain.
Locatie: Gelegen op een A2-locatie tussen de Markt en...